SITULI: Charmantes Einfamilienhaus mit Renovierungsbedarf und großem Garten

85630 Grasbrunn, Einfamilienhaus zum Kauf

Kontaktdaten

Objektdaten

  • Objekt-ID
    Situli-1234
  • Objekttypen
    Einfamilienhaus, Haus
  • Adresse
    85630 Grasbrunn
  • Wohnfläche ca.
    120 m²
  • Grund­stück ca.
    928 m²
  • Zimmer
    6
  • Schlafzimmer
    4
  • Badezimmer
    2
  • Wesentlicher Energieträger
    Öl
  • Baujahr
    1951
  • Zustand
    sanierungsbedürftig
  • Ausstattung
    Standard
  • Stellplätze gesamt
    2
  • Käufer­provision
    3,57 % inkl. USt.
    Die Provision für den Käufer beträgt 3,57 % inkl. MwSt. aus dem Kaufpreis. Wir haben mit dem Eigentümer einen Maklervertrag mit der gleichen Provisionshöhe abgeschlossen. Die Provision wird sofort nach Unterzeichnung des Kaufvertrags fällig.
  • Kaufpreis
    990.000 EUR

Energieausweis

  • Energieausweistyp
    Bedarfs­ausweis
  • Ausstellungsdatum
    nach dem 1.5.2014
  • Baujahr lt. Energieausweis
    1951
  • Primärenergieträger
    Öl
  • Endenergie­bedarf
    308,00 kWh/(m²·a)
  • Energie­effizienz­klasse
    H

Objekt­beschreibung

Beschreibung

Dieses renovierungsbedürftige Einfamilienhaus mit einer Wohnfläche von ca. 120 m² steht auf einem großzügigen Grundstück mit ca. 928 m² Fläche. Das Gebäude erstreckt sich über ein Vollgeschoss sowie ein ausgebautes Dachgeschoss und bietet eine solide Grundlage für eine umfassende Modernisierung oder eine individuelle Neugestaltung nach eigenen Vorstellungen.
Im Inneren verfügt das Haus über zwei Badezimmer sowie Parkettböden in den Wohnbereichen. Die vorhandene Struktur ermöglicht eine attraktive Neugestaltung der Grundrisse, um ein modernes und zeitgemäßes Wohnkonzept zu realisieren.
Im Erdgeschoss befinden sich auf der Südseite des Hauses das zentrale Wohnzimmer, ein Esszimmer und ein Gartenzimmer (letzteres ist nicht in der Wohnfläche enthalten). Man könnte die Grundrisse und die Nutzung so anpassen, dass man die aktuell noch abgetrennte Küche in den Wohnbereich integriert und das Esszimmer in ein Arbeits- oder Gästezimmer umwandelt.
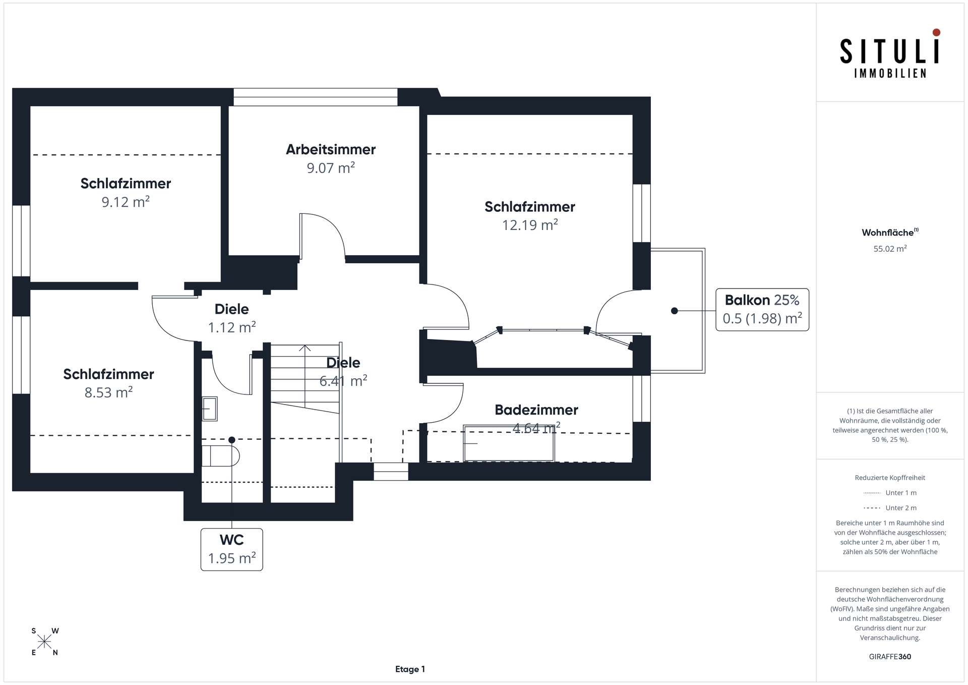
Im Obergeschoss gibt es vier Schlafzimmer ein Bad und ein WC. Auch hier könnte man die Grundrisse so ändern, dass man drei größere Schlafzimmer schafft. Übe dem Obergeschoss gibt es noch einen geräumigen Speicher.
Im Keller befinden sich ein kleinerer und ein größerer Kellerraum. Neben dem Haus befindet sich ein Anbau, in dem auf der Südseite das Gartenzimmer und auf der Nordseite eine Garage untergebraucht sind. Die Garage eignet sich perfekt für das Lagern von Gartenmöbeln und -geräten. Auf der Straßenseite des Grundstücks könnte man leichter zugängliche Stellplätze, einen Carport oder – mit einer Freigabe durch das Bauamt – auch eine Doppelgarage bauen.
Durch die Süd-West-Ausrichtung profitieren Wohn- und Gartenbereiche von optimaler Sonneneinstrahlung bis in die Abendstunden. Das weitläufige Grundstück bietet ausreichend Potenzial für großzügige Terrassen- und Gartenflächen.
Aufgrund der Grundstücksgröße bestehen zudem interessante Optionen für Erweiterung, Anbau oder gegebenenfalls eine Neubebauung (mit über 200 m² Wohnfläche) im Rahmen der baurechtlichen Vorgaben. Die Immobilie ist ab sofort verfügbar und eignet sich ideal für Käufer mit Gestaltungsideen, Investoren oder Bauherren mit Weitblick.

Sonstiges

Das Haus ist frei und kann kurzfristig übernommen werden.
Die Informationen über die Immobilie beruhen auf Angaben der Eigentümer und sind ohne Gewähr.

Lage

Das Haus befindet sich in einer gewachsenen Wohnlage in Grasbrunn-Neukeferloh. Die Umgebung ist geprägt von gepflegten Einfamilienhäusern und großzügigen Gärten, was eine angenehme und familienfreundliche Wohnatmosphäre schafft.
Das Haus liegt nur 10 Gehminuten von der S-Bahn-Station Vaterstetten entfernt und bietet eine sehr gute Infrastruktur mit Einkaufsmöglichkeiten, Schulen, Kindergärten sowie medizinischer Versorgung in unmittelbarer Umgebung. Die Anbindung an München ist hervorragend: Über die Autobahn A99 oder die B304 sowie den öffentlichen Nahverkehr sind sowohl die Münchner Innenstadt als auch umliegende Wirtschaftsstandorte und die bayrischen Alpen schnell erreichbar. Mit dem Auto erreicht den Tegernsee in nur 35 Minuten.
Die Kombination aus einem weitläufigen Garten und einer gleichzeitig hervorragenden Verkehrsanbindung verleiht diesem Standort eine besondere Attraktivität.

Die dargestellte Position der Immobilie ist nur eine ungefähre Angabe.

Direktanfrage

* Pflichtangaben
 SSL-verschlüsselt
Darstellung der Immobilien mit WP-ImmoMakler und Daten aus
Nach oben scrollen